Descriptif
Les Acacias proposent 320 logements neufs à la location (typologies allant du 2 au 6 pièces), une cour intérieure calme et des surfaces commerciales au rez-de-chaussée.
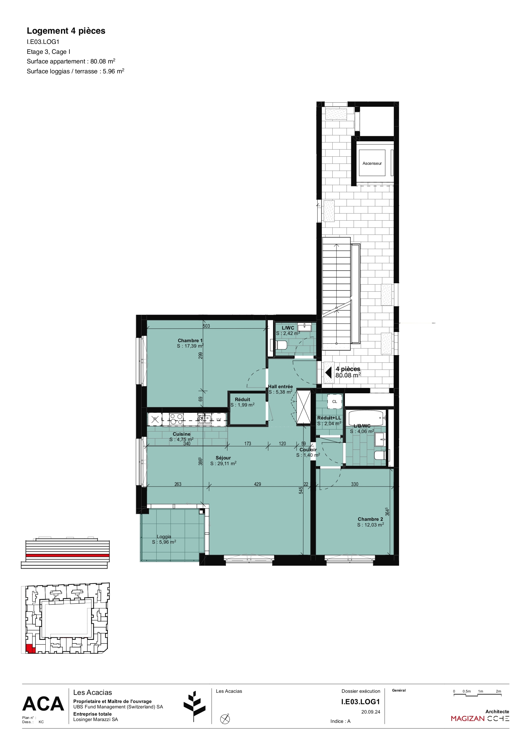
Ce grand 4 pièces d’angle est idéal pour les couples avec un enfant (minimum 2 occupants).
Il se distribue comme suit :
• Hall d’entrée avec armoire encastrée
• Cuisine ouverte sur le séjour (agencée et équipée avec de l’électroménager Miele : réfrigérateur, congélateur, plaques à induction, four à chaleur tournante, hotte, lave-vaisselle)
• Séjour avec accès à la loggia
• 2 chambres à coucher
• Salle de bains avec baignoire (pas de pare-bains ni de tringle), WC et lavabo
• WC visiteurs avec lavabo
• 2 réduits dont 1 avec attentes eau et électricité pour colonne de lavage
Equipements :
• Parquet au sol dans le séjour et les chambres à coucher
• Carrelage au sol dans l’espace cuisine
• Carrelage au sol et faïences sur toute la hauteur des murs pour les salles d’eau
• Chauffage au sol (CAD) avec régulation dans les pièces
• Stores manuels
Une loggia (avec luminaire au plafond), ainsi qu’une cave (porte en bardage ajouré, sans luminaire, ni prise électrique) complètent les prestations de ce bien.
Chaque allée est pourvue d’une buanderie commune et d’un local poussettes. 9 locaux vélos sont situés en rez-de-chaussée, dont 1 destiné aux vélos-cargo, ainsi que 3 locaux vélos en sous-sol.
Appartements sur plan uniquement.
Retrouverez nos appartements 4, 5 et 6 pièces sur le site https://www.les-acacias.ch.
En cas d'intérêt, nous contacter par mail uniquement : acacias@grrsa.ch
Commodités
Environnement
- Centre-ville
- Commerces
- Banque
- Restaurant(s)
- Pharmacie
- Arrêt de bus
- Arrêt de tram
- Aire de jeux
- Crèche/garderie
- Centre sportif
- Piscine publique
- Piscine intérieure
- Patinoire
Extérieur
- Loggia
- Verdure
- Place(s) de parc visiteur(s)
Intérieur
- Ascenseur
- Cuisine ouverte
- Salle de bain privative
- WC visiteurs
- Cave
- Réduit
- Non meublé
- Triple vitrage
- Lumineux
Equipement
- Cuisine agencée
- Plaques vitrocéramiques
- Four
- Réfrigérateur
- Congélateur
- Lave-vaisselle
- Branchements pour colonne de lavage
- Baignoire
- Téléréseau
- Fibre optique
- Ventilation contrôlée
Sol
- Carrelage
- Parquet
Etat
- Neuf
Standard de construction
- Minergie®



